压力范围特广
工作压差范围为0至1.6MPa, 高使用压力2MPa
结构简单紧凑
只有三个活动零件,结构简单,故障小,维修方便
寿命长
阀芯由特种不锈钢制造,耐磨损,耐低温
耐低温
采用特种耐低温材料, 低温度达-196℃
重量轻,外形小巧美观
| 型号 | ZCLD-03 | ZCLD-06 | ZCLD-08 | ZCLD-10 | ZCLD-15 | ZCLD-20 | ZCLD-25 | ZCLD-32 | ZCLD-40 | ZCLD-50 | |
| 介质温度 | -196~+60℃ | ||||||||||
| 公称通径mm | 3 | 6 | 8 | 10 | 15 | 20 | 25 | 32 | 40 | 50 | |
| 连接尺寸 | G1/4" | G3/8" | G1/2" | G3/4" | G1" | G1/4" | G1/2" | G2" | |||
| 焊接管或卡套式 | |||||||||||
| kv值 | 0.36 | 1.0 | 1.3 | 2.2 | 3.8 | 7.4 | 10.3 | 18.8 | 25.7 | 41 | |
| 最高使用压差MPa | 1.6 | ||||||||||
| 最低使用压差MPa | 0 | ||||||||||
| 最高使用压力MPa | 2.0 | 1.6 | |||||||||
| 泄露量cm3/min | 0.45 | 0.75 | 1.5 | 2.25 | 4.0 | 6.8 | |||||
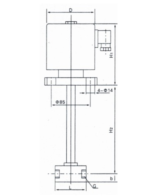
| DN | G | L | D | H1 | H2 | b | 安装法兰 | ||||
| 03 | G1/4" | 50 | Ø80 | 115 | 200 | 12 | GB9113.3 1.6MPa dn DN25法兰 | ||||
| 05 | 200 | ||||||||||
| 08 | G3/8" | 50 | 200 | ||||||||
| 10 | 200 | ||||||||||
| 15 | G1/2" | 54 | 200 | 15 | |||||||
| 20 | G3/4" | 92 | 200 | 30 | |||||||
| 25 | G1" | 110 | 200 | 30 | |||||||
| 32 | G1 1/4" | 120 | 240 | 34 | |||||||
| 40 | G1 1/2" | 140 | 245 | 40 | |||||||
| 50 | G2" | 160 | 260 | 45 | |||||||
浙公网安备 33032402001116号 网站地图
13968958698
0577-67378705 / 67378706
浙江省温州市瓯北镇东瓯工业区和二园区大道926号